Client
Swan Hill Rural City Council
Collaboration
Homewood Consulting Arborist, GTS, RMG - structural engineers, Australian Built Asset Consultancy
Following on from our Monash Drive streetscape project with Swan Hill Rural City Council, we were engaged once again to further develop the proposed viewing platform.
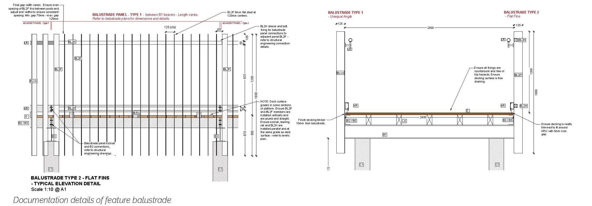
We undertook design refinement of the original design and worked closely with RMG structural engineers to develop the form and features of the platform. The structure includes a boardwalk section continuing the path network along Monash Drive over a steep section of river bank. The boardwalk branches off to a viewing platform overlooking the Little Murray River. A feature balustrade with angles and fins spans the organic shape of the platform. The form of the balustrade captures the light from various angles to create a tonal pattern. A custom benach seat extrudes from the timber deck to provide a resting point and a new tourism destination in Swan Hill.
130 Howards Road,
Wattle Flat, VIC 3352
map
Copyright © 2024 Thomson Hay Landscape Architects Pty Ltd
site by mulcahymarketing.com.au
We acknowledge the Traditional Owners of the lands on which we work and pay our respects to Elders past and present.